Moduļu mājas, gatavas un uzreiz dzīvojamas,uzstādāmas jebkurā vietā!
PAMATKOMPLEKTS
Sienu biezums ārsienām ir virs 350 mm (siltinājums 250 – 300 mm). Tik labi nosiltinātas mājas praktiski neviens nepiedāvā. Mājas rāmis izgatavots no kalibrētām un apstrādātām brusām.
Starpsienu biezums 100-200mm.
- Ēvelēti iekšējās apdares dēļi, krāsoti balti
- Reģipsis, krāsots balts/tonis
- Lamināta liellokšņu(paneļu) apdare
- Flīzes
- Citi veidi
Pamati ir stabveida betonēti pamati.
Fasādei ir 2 varianti standartā: klasisks koka dēļu apšuvums, kas ir horizontāls vai vertikāls.
Siltinājumam izmantojam tikai vati!
Nelietojam beramās ekovates u.c. līdzīgus materiālus. Lietojam tikai Paroc ražojuma vati!
Jumts ir siltināts 300mm biezā slānī, vienas plaknes jumts, kas ir 2 kārtās uzkausēts ar bituma materiālu. Notekas .
Grīda ir ar 300mm siltinājumu, iekšējo apdari-OSB+grīdas reģipis un ar ļoti labas kvalitātes parketu, flīzējums.
Logi ir PVC iekšpusē balti, ārpusē -saskaņotā tonī ar fasādi. Vācu logi ar kvalitatīvu furnitūru.
Durvis ir metāla durvis,ar MDF apdari no abām pusēm, ar labas kvalitātes slēdzenēm.
Iekšdurvis – kvalitatīvas laminētas durvis.
Augstas kvalitātes tvaika un vēja barjeras sienās, griestos un jumta konstrukcijās, savienojuma vietās hermētiski pielīmētas.
Mēbeles ir visas, kas norādītas rasējumos (iebūvējamie skapji, virtuves iekārta, galdi, gultas utt) . Ar specifikāciju var iepazīties pieprasot to elektroniski.
Sadzīves tehnika un santehnika ir pilnībā nokomplektēta (duša, izlietne, iebūvējamais wc, veļasmašīna, trauku mazgājamā mašīna, plīts virsma, cepeškrāsns, ledusskapis utt)
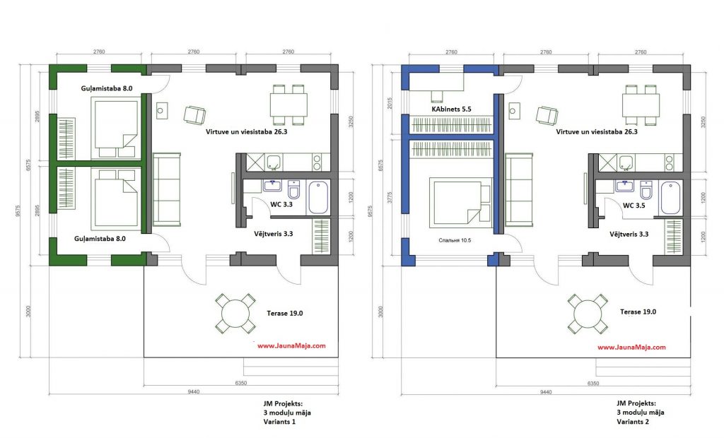
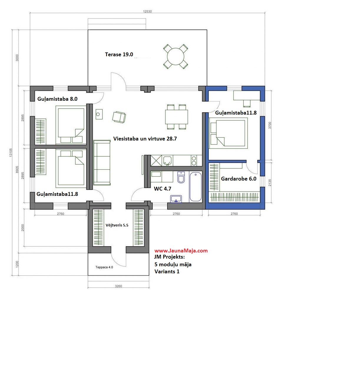
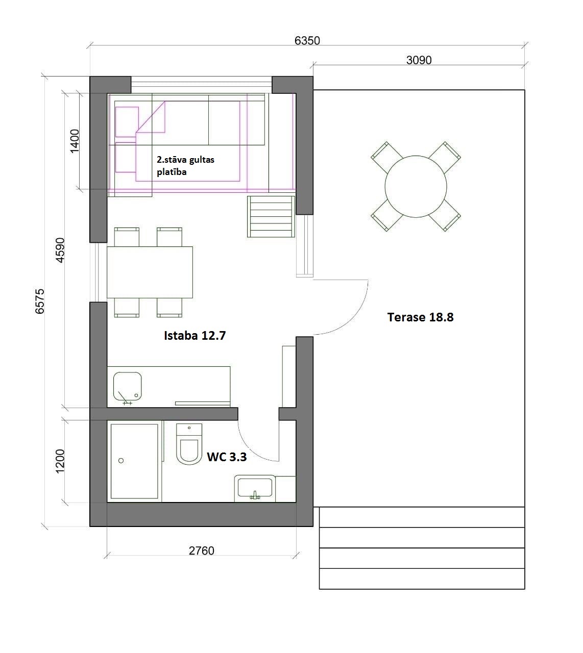
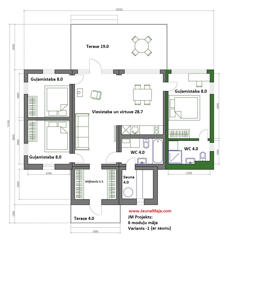
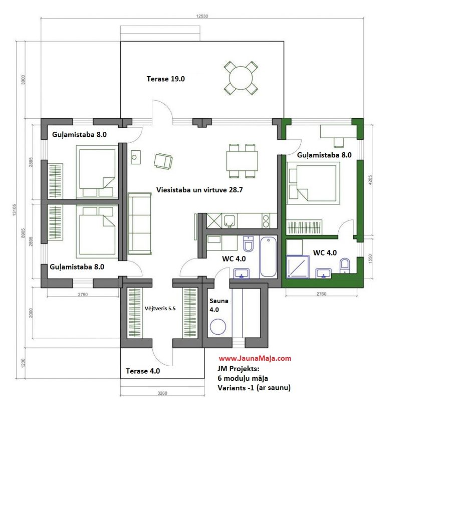
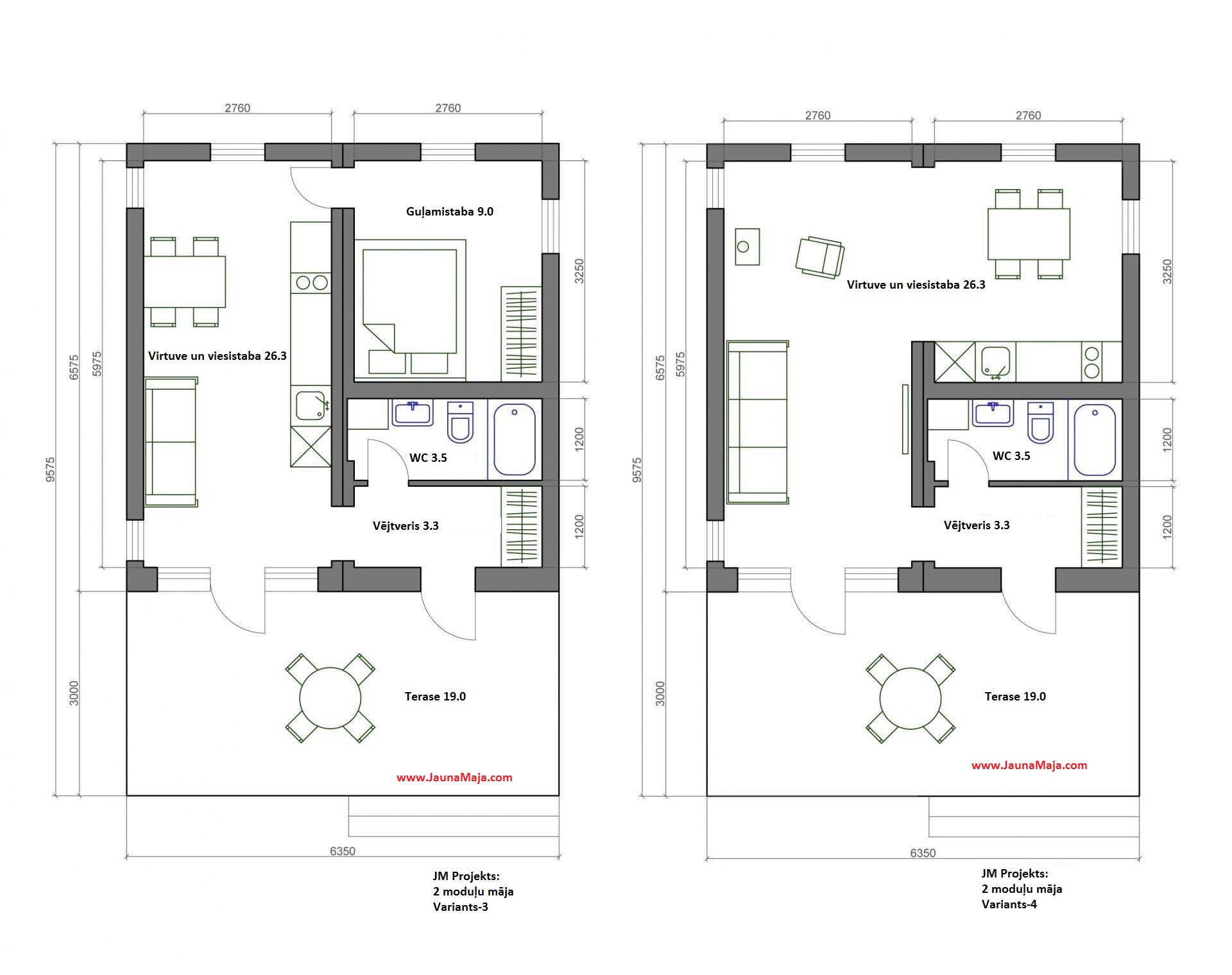
Terase ir komplektā katrai mājai 19 kvm.
Elektriskie radiatori ar taimera funkciju
Granulu kamīns, attālināti regulējams
Elektriskā grīdas apsilde vannasistabā
Led iebūvējamās gaismas un āra apgaismojums, Schneider slēdži un rozetes!































